This project focuses on freehand construction details for the exterior and interior design elements of a residence. The development includes design for the exterior façade, selection of materials, interior layouts and design.
DETAILS
The floor plans and hand-drawn details include the following:
AD1 Enlarged plan of the front porch (1:20)
AD2 Exterior wall at corner (1:5)
AD3 Exterior wall at intersecting interior wall (1:5)
AD4 Entrance door jamb (1:5)
AD5 Foundation wall at first floor and grade (1:10)
AD6 Exterior wall at second floor (1:10)
AD7 Exterior wall at roof edge (1:10)
AD8 Typical window head (1:5)
AD9 Typical window sill (1:5)
AD10 Typical window jamb (1:5)
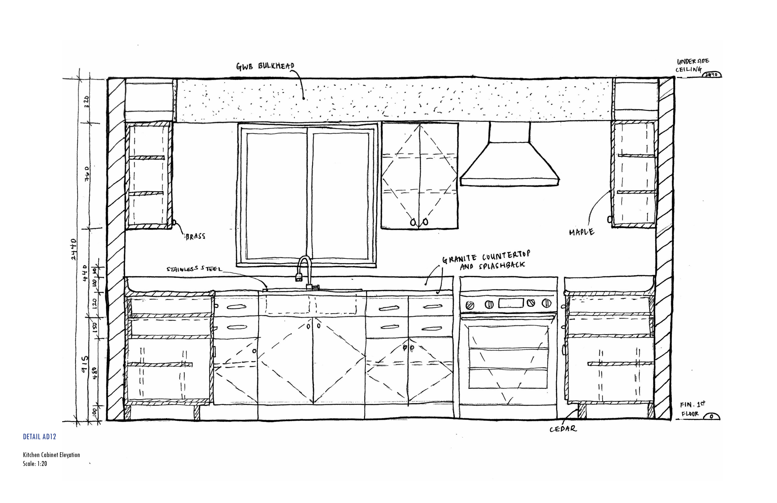
AD12 Kitchen cabinet elevation (1:20)
AD13 Bottom of stair at first floor (1:5)
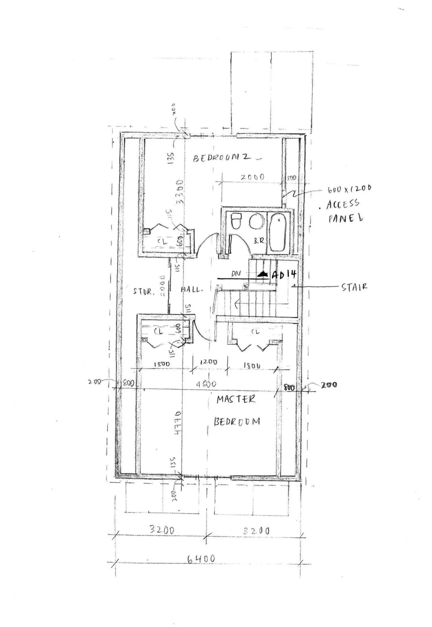
AD14 Top of stair at second floor (1:5)
PRELIMINARY DRAWINGS
House Section Reference
Ground Floor Plan
Second Floor Plan
FREEHAND CONSTRUCTION DETAILS
AD1 + AD2
AD3 + AD4
AD5 + AD6
AD7 + AD8
AD0 + AD10
AD12
AD13 + AD14