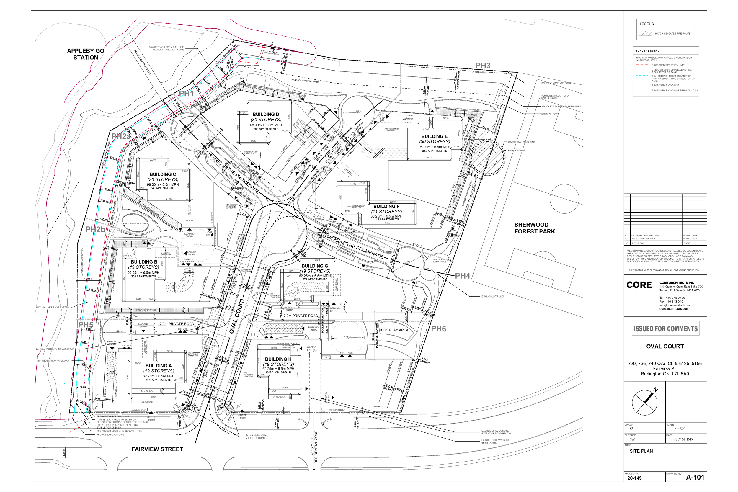
Revised masterplan setbacks and below-grade layouts for Buildings A-H, adjusting parking, drive aisles, and travel pathways to meet accessibility and fire safety standards. Modified boundaries for commercial spaces, roof terraces, and landscaping, and recalculated GCA and GFA statistics to account for changes. Incorporated landscaping consultant feedback into the exterior sidewalk design.



