Developed comprehensive architectural plans and site layouts to integrate residential units, amenities, commercial spaces, and pet-friendly outdoor areas. Created detailed site plans for PAC submissions, incorporating adjacent site context, road widening, mid-block connections, parkland dedication, and landscape proposals. Produced OPA/ZBA drawing sets which included shadow studies, Toronto Green Standards, bird-friendly glazing, and fire safety measures.
FEASIBILITY STUDY
Parking Plan
Ground Floor Plan
Levels 2-4
Level 5
MPH
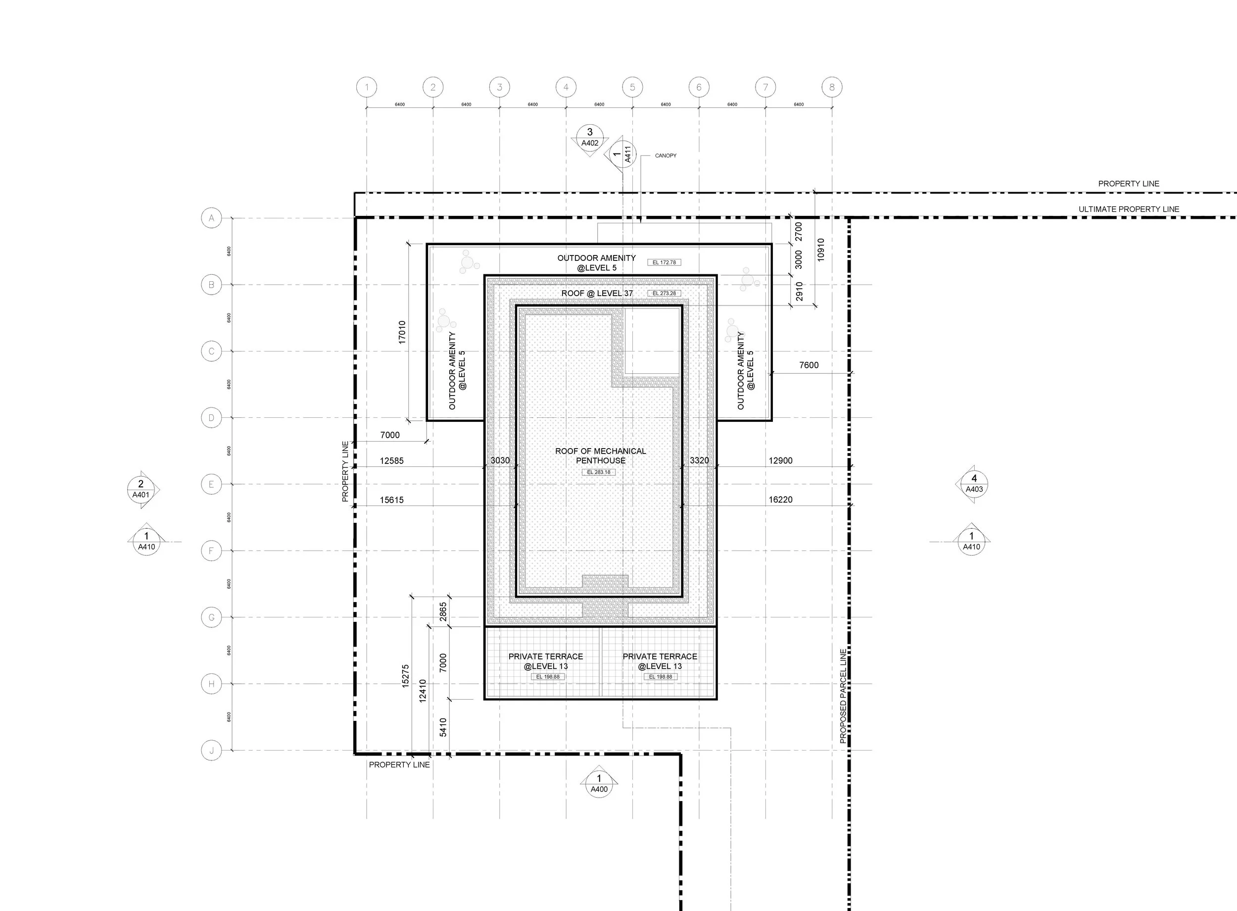
Roof Plan
Building Section
ZBA Drawing Set
Context Plan
Site Plan
Parking Level
Ground Floor
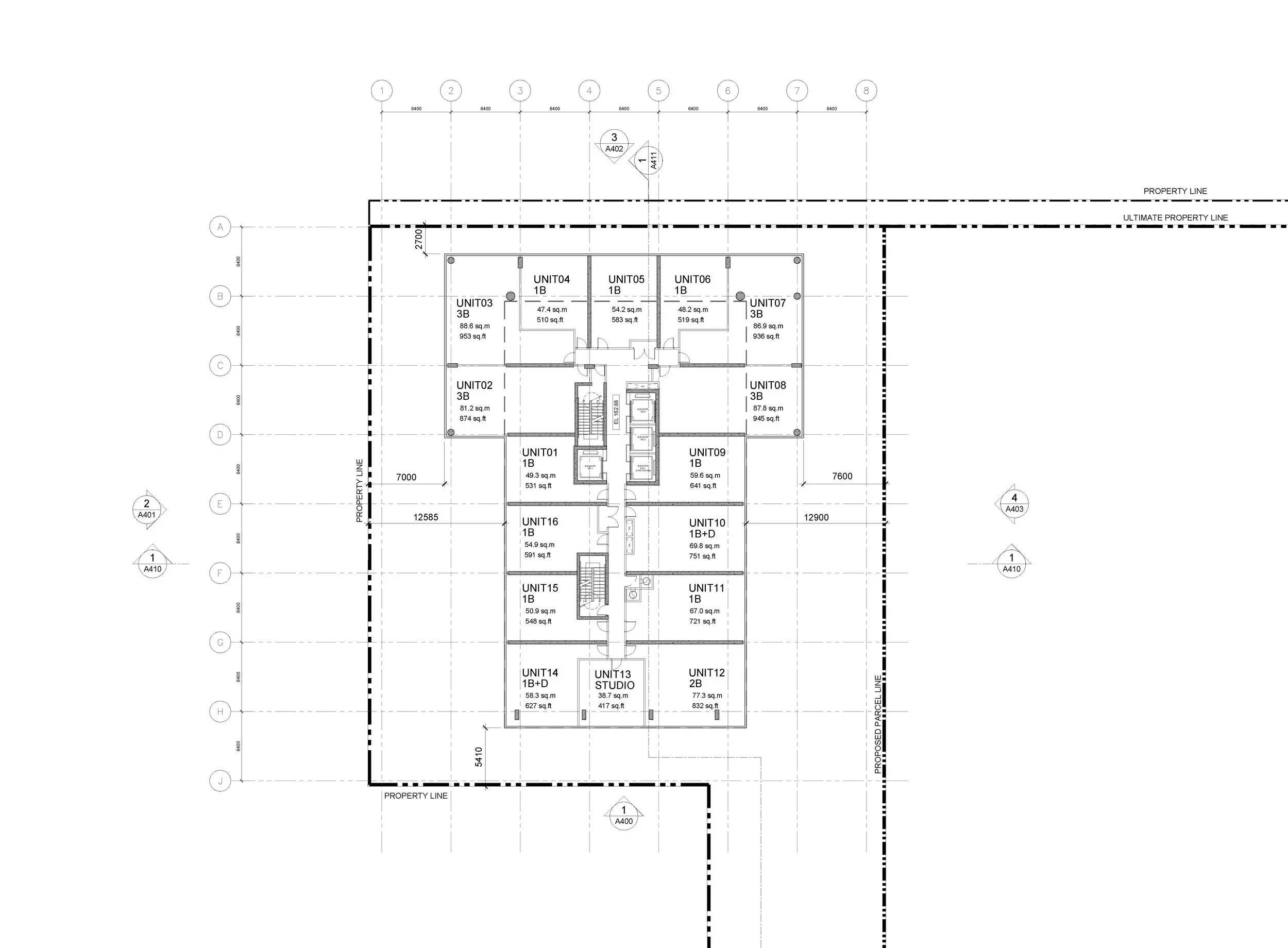
Podium Floor
Roof Plan
Elevation
Section
3D Render