Assisted in preparing drawings for noise and vibration consultants to analyze the building’s window-wall system for compliance with noise mitigation guidelines. Created typical unit floor plans and façade elevations, and helped update the site plan to relocate the fire hydrant to meet distance requirements.
OPA/ZBA Drawings
Context plan
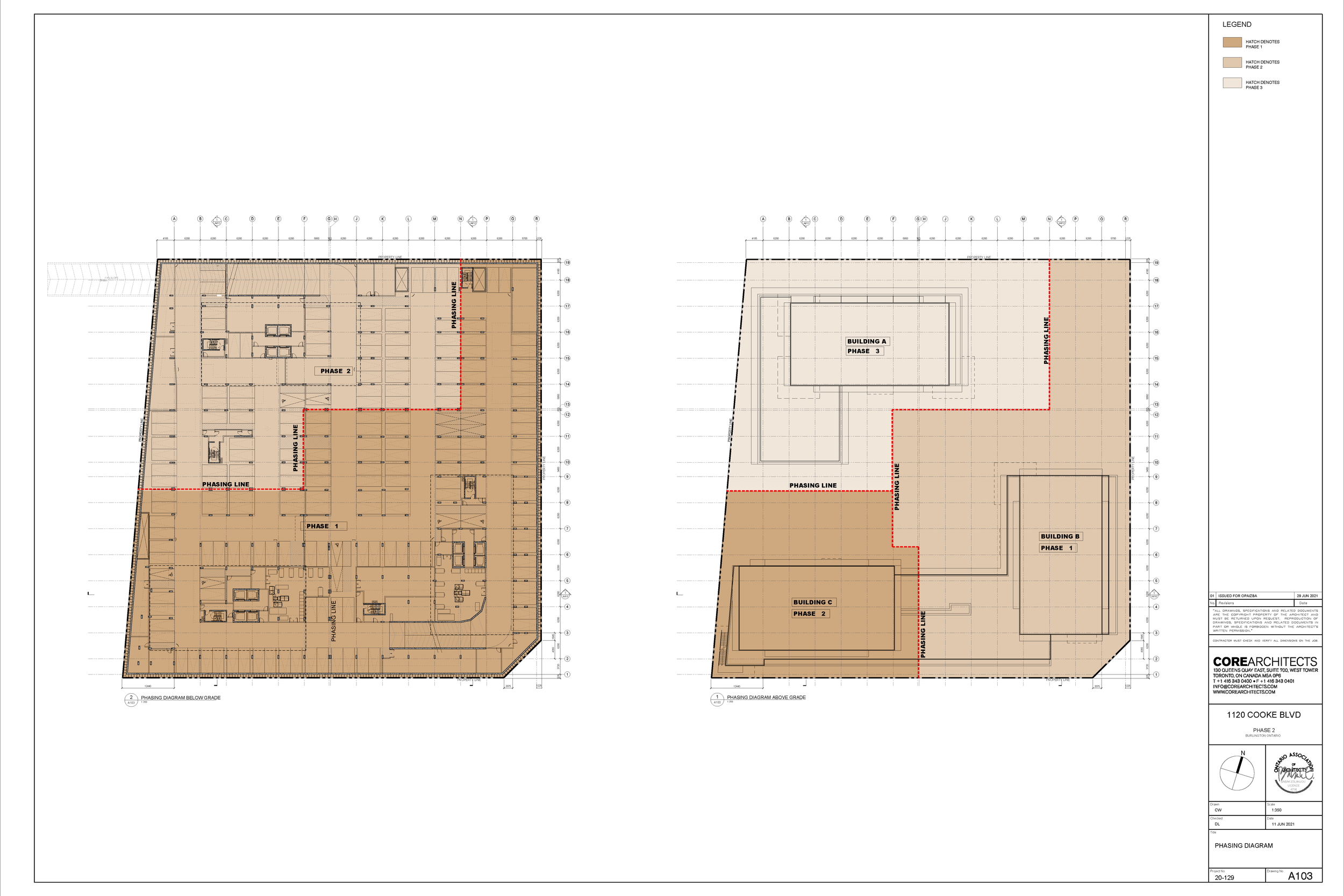
Phasing Diagram
Site Plan
Parking Level
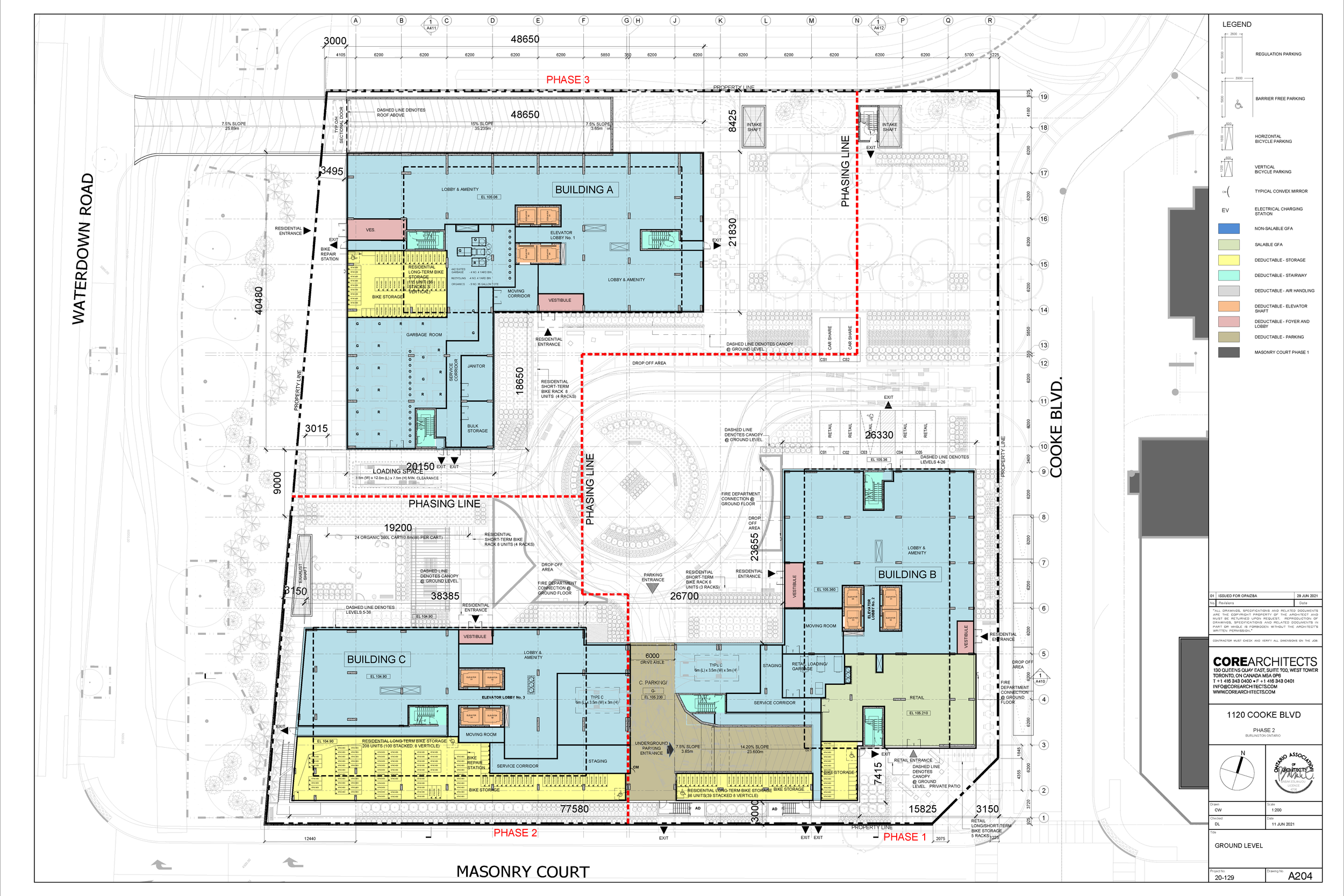
Ground Floor
Podium
Typical Tower
Section